บริการ
serve
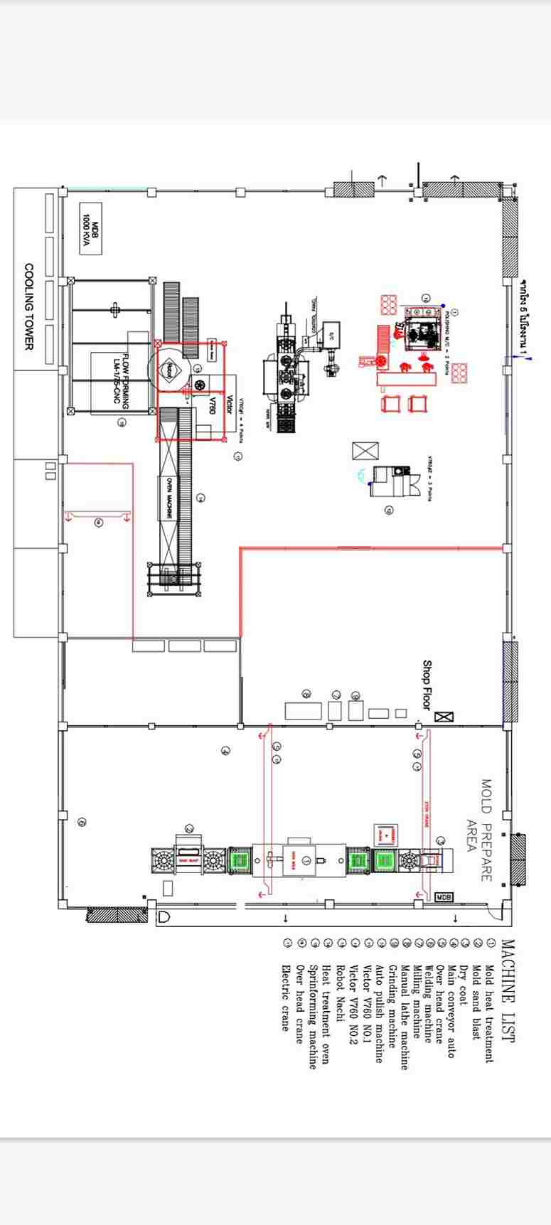
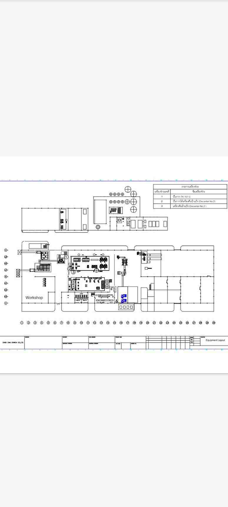
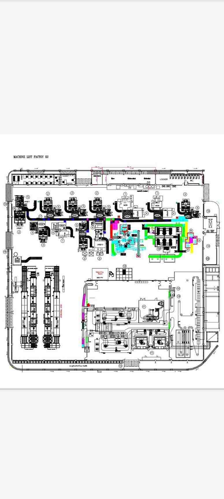
ออกแบบผังโรงงาน
ผังโรงงาน
ผังการติดตั้งเครื่องจักร
พร้อมรับรองใบประกอบวิชาชีพ
เกี่ยวกับเรา
“การออกแบบและวางผังโรงงาน” ก็เหมือนความคิดที่จะ “สร้างบ้านอีกหลัง” ให้กับคนหลายคนอยู่ ฉะนั้นจึงเป็นสิ่งจำเป็นที่เหล่า CEO ต้องศึกษาและใส่ใจให้มาก เพราะในที่ที่มีคนอาศัยอยู่รวมกัน มันง่ายต่อการเกิดปัญหา สิ่งที่ต้องการ คือ ความเป็นระเบียบ ความสบาย ความปลอดภัย ความโปร่งโล่ง และความผ่อนคลายจากสิ่งอำนวยความสะดวกสบายต่างๆ ซึ่งต้องจัดเตรียมไว้ให้ หากประสงค์ให้การทำงานดำเนินไปอย่างราบรื่น
ในส่วนของการวางตำแหน่งตัวเครื่องจักร เครื่องมือ อุปกรณ์ วัตถุดิบ หรือแม้กระทั้งตัวคนงานก็ต้องจัดให้อยู่ในที่ที่เหมาะสม เพื่อให้มีพื้นที่ในการลำเลียงสินค้าหรือขนย้ายอุปกรณ์ต่างๆ ให้เป็นไปอย่างลื่นไหลและไม่ติดขัด ประกอบกับการวางระบบวิศวกรรมเอง ก็ต้องอยู่ในที่ที่สามารถดำเนินการได้อย่างคุ้มค่าและมีประสิทธิภาพสูงสุด
อย่างไรก็ตาม แม้จุดประสงค์หลักๆ ของการออกแบบและวางผังโรงงาน คือการอำนวยความราบรื่นในการทำงานพร้อมกับทำให้คนงานรู้สึกได้ทำงานอย่างเต็มประสิทธิภาพ แต่ดังที่กล่าวมาตั้งแต่ต้นแล้วว่า ตัวผู้บริหารเองต่างหาก ที่จะได้รับผลประโยชน์เต็มๆ จากสิ่งเหล่านี้
บริการต่างๆของเรา
เราทำอะไรบ้าง
สามัญวิศวกรอุตสาหการ (สอ.)
1.รับเขียนแบบผังบริเวณ ,ผังโรงงาน, ผังการติดตั้งเครื่องจักร พร้อมรับรองเพื่อใช้ประกอบ
1.1 การขอใบอนุญาตประกอบกิจการโรงงาน,แจ้งประกอบ (รง.3,รง.4),(กนอ.03/1 )
1.2 การขยายโรงงาน,เปลี่ยนแปลงเครื่องจักร และต่อใบอนุญาต ( รง.3 กนอ.03/3 กนอ.03/6)
1.3 จดทะเบียนกรรมสิทธิ์เครื่องจักรสำนักเครื่องจักรกลางกรมโรงงานอุตสาหกรรม
2. บริการเขียนแบบโครงสร้างพร้อมรับรองเพื่อขอใบอนุญาตก่อสร้าง อ.1 ,กนอ 02/1
3. บริการงานขอใบอนุญาตประกอบกิจการโรงงาน รง.4 , กนอ.03/1
4. บริการงานตรวจสอบและรับรอง
4.1 ตรวจสอบอาคาร
4.2 ตรวจสอบการจัดการพลังงาน
4.3 ตรวจสอบปั่นจั่น ลิฟท์ รอก เครน เครื่องจักร
ติดต่อ คุณไพศาล
โทร 081-5569893
ID line: 0815569893
E-mail : phaisan_3@hotmail.com

















วัตถุประสงค์ของการวางผังโรงงาน
การวางผังโรงงานมีความสำคัญ ซึ่งเป็นกิจกรรมในการกำหนดตำแหน่งของคน เครื่องจักร วัสดุ และสิ่งสนับสนุนการผลิตให้อยู่ในตำแหน่งที่เหมาะสม ก่อให้เกิดกระบวนการผลิตที่เหมาะสม ลดเวลาว่างเปล่า (Idle Time) การไหลของวัสดุเป็นไปอย่างต่อเนื่อง ระยะเวลาการผลิตสั้นลง มีความยืดหยุ่นสูง เมื่อมีการปรับปรุงหรือเปลี่ยนแปลงทำได้สะดวกและเสียค่าใช้จ่ายน้อยที่สุด ส่งผลต่อต้นทุนการผลิตต่ำลง
ทำไมต้องเรา
เราคือผู้ให้บริการด้านการ ออกแบบและ เครื่องจักร งานโกดัง โรงงาน โดยเฉพาะมาอย่างยาวนาน การันตีด้วยผลงาน ที่โดดเด่นและแตกต่าง ตอบโจทย์ทุกความต้องการให้กับนักธุรกิจสมัยใหม่ ด้วยทีมงานมืออาชีพที่มีความรู้เฉพาะทางในทุกๆด้าน พร้อมให้บริการครบวงจร ตั้งแต่ ออกแบบ จัดทำแบบเพื่อขออนุญาติ จนก่อสร้างแล้วเสร็จ
เราทราบว่า สำหรับเจ้าของธุรกิจหลายๆ ท่าน ต้องการก่อสร้างโรงงาน หรือโกดังเก็บสินค้า หรือ สำนักงาน แต่ยังขาดความรู้ในเฉพาะทาง เช่น เรื่องกฎหมายอาคาร หรือ การจัด function การใช้งานภายในและรูปแบบภายนอก ทางเราจะตอบโจทย์เรื่องข้างต้นทั้งหมด แบบที่เราออกแบบ จึงมีเอกลักษณ์เฉพาะตัว สามารถก่อสร้างได้จริง และใช้งานได้จริงๆ โดยไม่เสียพื้นที่เปล่า
Phaisan
มาเริ่มกันเลย
ออกแบบและวางผังโรงงาน เพื่อสร้างรากฐานอันแข็งแกร่งให้ธุรกิจ